VQ671F/VQ641F 氣動V型球閥
產品概況
產品型號:VQ671F/VQ641F
公稱通徑:對夾式DN25~250mm/法蘭DN25~500mm
公稱壓力:PN1.6~2.5MPa
連接方式:對夾式/法蘭
介質溫度:W1:-40~180℃ W2:-40~300℃ W3:-30~425℃ W4:-40~425℃
閥體材質:碳鋼(C)、不銹鋼(P4、P6)
設計依據:GB標準
設計標準:GB/12237
連接法蘭尺寸:GB/9113、JB/T79
實驗和檢驗:JB/T9092
VQ671F/VQ641F氣動V型球閥特點
1、結構緊湊,體積小,可豎臥安裝等優點。
2、具有出色的調節特性:V型球閥具有一個近似等百分比的固有流量特性及高達300:1的可調1、結構緊湊,體積小,可豎臥安裝等優點。
2、具有出色的調節特性:V型球閥具有一個近似等百分比的固有流量特性及高達300:1的可調比。因此V型閥可以在廣幅的變化范圍內提供精確的控制。
3、最大流動容積:由于它的流線型外形以及滿直角回轉控制緣故,使容積的Max特別高,流通能力特別大,流通阻力小,因此可以使用較小的更加經濟實用的閥門尺寸。
4、V型球閥采用雙軸承結構,機械穩定性能高,啟動扭矩小,保證了閥門具有極好的靈敏度和感應速度。
5、較大可靠(安全)性:閥體為一個整體,堅固耐用,操作不受管道壓力影響,并可避免閥體滲漏。
6、金屬閥座的優越密封性:V型球閥采用可動金屬閥座,自助補償功能,并具有優越密封性能及較長的使用壽命。在流向上,泄漏量≤10-6×額定流量系數。
7、較強的剪切能力:V型球閥采有金屬硬密封結構,V型球閥芯及金屬閥座在回轉過程中,V型缺口與閥座產生一個強大的剪切力能切斷纖維等雜質,并具有自潔功能,避免閥門卡死現象發生。
| VQ671F/VQ641F氣動V型球閥技術參數 | |
| 公稱通徑 | 對夾式DN25~250mm/法蘭DN25~500mm |
| 連接方式 | 對夾式/法蘭 |
| 氣缸配置 | AT系列、GT系列、AW系列、進口執行器系列 |
| 氣缸形式 | 雙作用、單作用(彈簧復位) |
| 控制方式 | 二位切斷(開關型)、調節型、三段式(開度可選) |
| 公稱壓力 | 16、25bar(如需更高壓力訂貨時請注明) |
| 氣源壓力 | 雙作用:4~8bar、單作用:5~8bar |
| 介質溫度 | W1:-40~180℃ W2:-40~300℃ W3:-30~425℃ W4:-40~425℃ |
| 環境溫度 | 標準型:-20~80℃ |
| 閥體材質 | 碳鋼(C)、不銹鋼(P4、P6) |
| 密封材質 | 聚四氟乙烯(F)、對位聚苯(PPL)、金屬硬密封(H)、硬質合金(Y) |
備注:其它特殊密封材質或特殊溫度亦可根據客戶要求設計制造
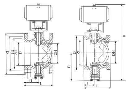
VQ671F/VQ641F氣動V型球閥主要尺寸

| PN(MPa) | DN(mm) | 尺寸(mm) | ||||||||
| L | 對夾連接 | 法蘭連接 | H | |||||||
| D | D | D1 | D2 | D6 | b | z-d | ||||
| 1.6 | 25 | 102 | 64 | 115 | 85 | 5 | - | 14/16 | 4-14 | 233 |
| 40 | 114 | 82 | 145/150 | 110 | 85/84 | - | 16/18 | 4-18 | 280 | |
| 50 | 124 | 100 | 160/165 | 125 | 100/99 | - | 16/20 | 4-18 | 362 | |
| 65 | 145 | 118 | 180/185 | 145 | 120/188 | - | 18/20 | 4-18 | 377 | |
| 80 | 165 | 130 | 195/200 | 160 | 135/132 | - | 20 | 8-18 | 410 | |
| 100 | 194 | 155 | 215/220 | 180 | 155/150 | - | 20/22 | 8-18 | 423 | |
| 125 | 210 | 185 | 245/250 | 210 | 185/184 | - | 22 | 8-18 | 436 | |
| 150 | 229 | 216 | 280/285 | 240 | 210/211 | - | 24 | 8-23/8-22 | 653 | |
| 200 | 243 | 264 | 335/340 | 295 | 265/266 | - | 26/24 | 12-23/12-22 | 703 | |
| 250 | 297 | 328 | 405 | 355 | 320/319 | - | 30/26 | 12-25/12-26 | 787 | |
| 300 | 338 | 373 | 460 | 410 | 375/370 | - | 30/28 | 12-25/12-26 | 827 | |
| 2.5 | 25 | 102 | 64 | 115 | 85 | 65 | - | 16 | 4-14 | 233 |
| 40 | 114 | 82 | 145/150 | 110 | 85/84 | - | 18 | 4-18 | 280 | |
| 50 | 124 | 100 | 160/165 | 125 | 100/99 | - | 20 | 4-18 | 362 | |
| 65 | 145 | 118 | 160/185 | 145 | 120/118 | - | 22 | 8-18 | 377 | |
| 80 | 165 | 130 | 195/200 | 160 | 135/132 | - | 22-24 | 8-18 | 410 | |
| 100 | 194 | 155 | 230/235 | 190 | 160/156 | - | 24 | 8-23/8-22 | 423 | |
| 125 | 210 | 185 | 270 | 220 | 188/184 | - | 28/26 | 8-25/8-26 | 436 | |
| 150 | 229 | 216 | 300 | 250 | 218/211 | - | 30/28 | 8-25/12-26 | 653 | |
| 200 | 243 | 264 | 360 | 310 | 278/274 | - | 34/30 | 12-25/12-26 | 703 | |
| 250 | 297 | 328 | 425 | 370 | 332/330 | - | 36/32 | 12-30 | 787 | |
| 300 | 338 | 373 | 485 | 430 | 390/389 | - | 40/34 | 16-30 | 827 | |
溫馨提示:
本文中所有文字、數據、圖片均只適用于參考。需要查看更多的VQ671F/VQ641F 氣動V型球閥性能參數、結構尺寸參數、價格等詳情,或要求高質量印刷樣本,請聯系我們。