V230型壓力調節閥
產品概況
產品型號:V230型
公稱通徑:DN15mm~250mm
公稱壓力:PN1.6、 4.0 MPa
適用溫度:液體≤ 140℃、氣體≤ 80℃
主要材質:鑄鐵、鑄鋼、鑄不銹鋼
設計標準:GB/T17213
檢驗標準:GB/T4213
法蘭標準:JIS B220、JB/T79、ANSI B16.5-1981、GB/T9113、HG20594-97、HG20618-97等
V230型壓力調節閥產品概述:
百鋼閥門集團生產銷售的V230型壓力調節閥,由閥體、閥座、閥芯部件等零部件組成,是一種無需外來能源而只依靠被調介質自身的壓力變化進行自動調節壓力 的節能型產品,可用于非腐蝕性(Max溫度350℃)的液體、氣體和蒸汽等介質的壓力控制裝置。廣泛適用于石油、化工、冶金、輕工等工業部門及城市供熱、供 暖系統。
◆型號、規格
|
類別 |
壓力控制調節閥 |
差壓控制調節閥 |
||||||
|
閥后壓力調節閥 |
閥前壓力調節閥 |
差壓上升閥關閉 |
差壓上升閥開啟 |
|||||
|
硬密封 |
軟密封 |
硬密封 |
軟密封 |
硬密封 |
軟密封 |
硬密封 |
軟密封 |
|
|
型號 |
V230 D01 |
V230D01 |
V230D02 |
V231D02 |
V230D03 |
V231D03 |
V230D04 |
V231D04 |
|
規格 |
DN15-250 |
|||||||
V230型壓力調節閥技術參數:
|
公稱通徑 mm |
15 |
20 |
25 |
32 |
40 |
50 |
65 |
80 |
100 |
125 |
150 |
200 |
250 |
|
|
額定流量系數 Kvs |
3.2 |
5 |
8 |
12.5 |
20 |
32 |
50 |
80 |
125 |
160 |
320 |
450 |
630 |
|
|
公稱壓力 MPa |
1.6、 4.0 |
|||||||||||||
|
Z 值 |
0.6 |
0.6 |
0.6 |
0.55 |
0.55 |
0.5 |
0.5 |
0.45 |
0.4 |
0.35 |
0.3 |
0.2 |
0.2 |
|
|
工作溫度℃ |
V230 V231 |
液體≤ 140 、氣體≤ 80 |
||||||||||||
|
硬密封 V230 |
配隔離罐≤ 200 |
配隔離罐和加長件≤ 300* |
||||||||||||
|
配隔離罐和散熱片≤ 200 |
||||||||||||||
|
壓力平衡元件 |
波紋管 |
滾動膜片 |
||||||||||||
|
法 蘭 標 準 |
DIA (亦可按用戶要求提供法蘭標準) |
|||||||||||||
|
閥 體 材 質 |
PN16 :鑄鐵(工作溫度≤ 200 ℃); PN4.0 :鑄鋼、鑄不銹鋼(工作溫度≤ 350 ℃) |
|||||||||||||
|
閥 芯 材 質 |
不銹鋼;軟密封為不銹鋼鑲嵌橡膠圈 |
|||||||||||||
|
工作壓力 MPa |
公稱壓力(注意△ Pmax 及工作壓力與工作溫度的關系) |
|||||||||||||
注:
1、液體>140℃、氣體>80 ℃時閥倒裝;
2、Z值:噪音衡量系數,該值用來衡量噪音大小,具體計算詳見自力式調節閥選擇指南。
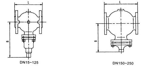
◆外形尺寸
|
公稱通徑 mm |
20 |
25 |
32 |
40 |
50 |
65 |
80 |
100 |
125 |
150 |
200 |
250 |
|
L mm |
150 |
160 |
180 |
200 |
230 |
290 |
310 |
350 |
400 |
480 |
600 |
730 |
|
B mm |
212 |
238 |
238 |
240 |
240 |
275 |
275 |
380 |
380 |
295 |
325 |
372 |
|
大約重量 kg |
6.7 |
9.7 |
13 |
14 |
17 |
29 |
33 |
60 |
70 |
80 |
140 |
220 |
◆D02(D04)執行器尺寸及重量
|
有效面積 cm 2 |
32 |
80 |
250 |
630 |
|
D mm |
172 |
172 |
263 |
380 |
|
H mm |
435 |
430 |
470 |
520 |
|
大約重量 kg |
7.5 |
7.5 |
13 |
28 |
|
有效面積 cm 2 |
32 |
80 |
250 |
630 |
|
D mm |
172 |
172 |
263 |
380 |
|
H mm |
440 |
435 |
440 |
520 |
|
大約重量 kg |
7.5 |
7.5 |
13 |
28 |
注:直接作用式自力式閥的總高及總重為控制閥與執行器高度及 重量之和。
溫馨提示:
本文中所有文字、數據、圖片均只適用于參考。需要查看更多的V230型壓力調節閥 性能參數、結構尺寸參數、價格等詳情,或要求高質量印刷樣本,請聯系我們。